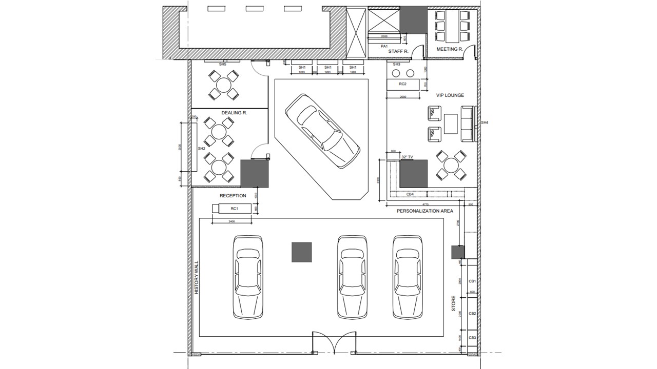
THIẾT KẾ THI CÔNG SHOWROOM Ô TÔ MASERATI
Được xây dựng trong trung tâm thương mại tòa nhà Metro Polish Kim Mã với diện tích gần 350m2 ; các hạng mục thi công bao gồm :
phần xây dựng cơ bản : – Thi công sàn chuyên dụng chuẩn hãng
– Dựng hệ vách / trần/ ngăn phòng công năng…
– Hệ vách kính
Phần ME/ hệ thống báo cháy : – Đi hệ thống điện, tín hiệu, máy chấm công, Telephone, hệ thống báo cháy, Camera an ninh …..
Phần Nội thất : Sản xuất vật dụng nội thất chuyên dụng, logo , Đồ Họa…








