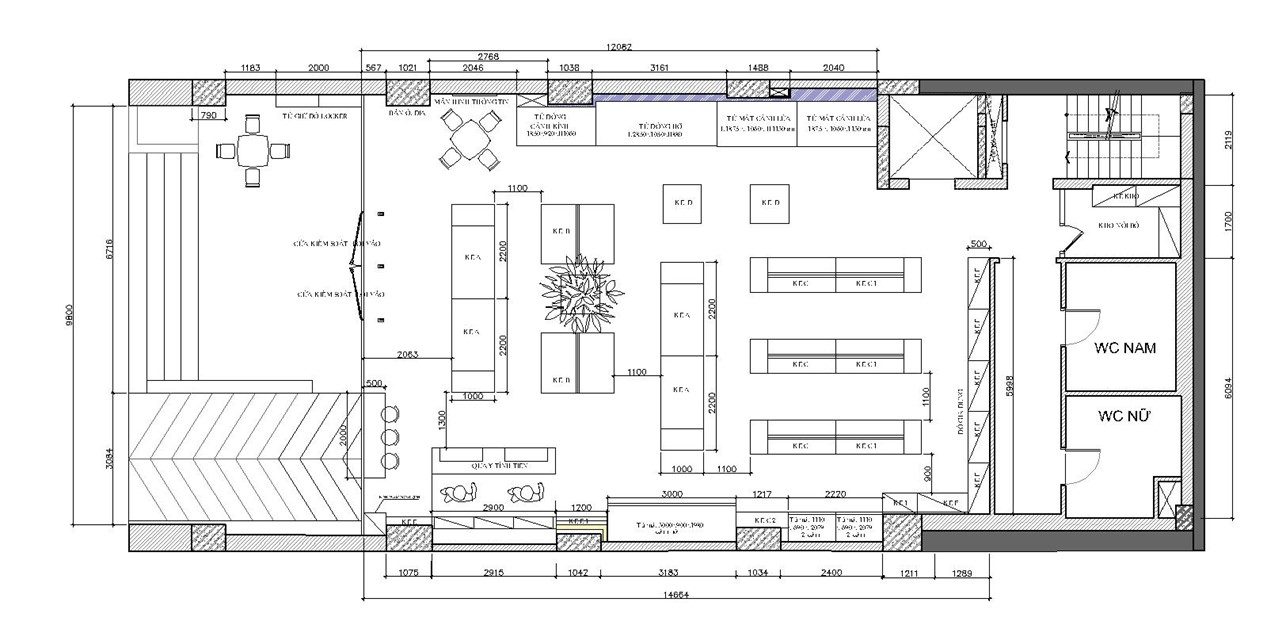
Hệ thống quầy kệ siêu thị Thuần San tại Hạ Long.
Diện tích mặt sàn 3 tầng : tổng diện tích hơn 600m2
Chúng tôi cung cấp giải pháp thiết kế – sản xuất – thi công quầy kệ siêu thị trọn gói, đảm bảo thẩm mỹ, công năng và hiệu quả kinh doanh lâu dài.
👉 Liên hệ ngay để được tư vấn giải pháp quầy kệ siêu thị phù hợp nhất cho không gian của bạn.
Quầy Kệ Siêu Thị Hiện Đại | Kệ Trưng Bày Siêu Thị Chuyên Nghiệp.

MẶT BẰNG BỐ TRÍ TẦNG 1

MẶT BẰNG BỐ TRÍ TẦNG 2











